• Free

Schematic Design in Revit

  • Course
  • 3 Lessons

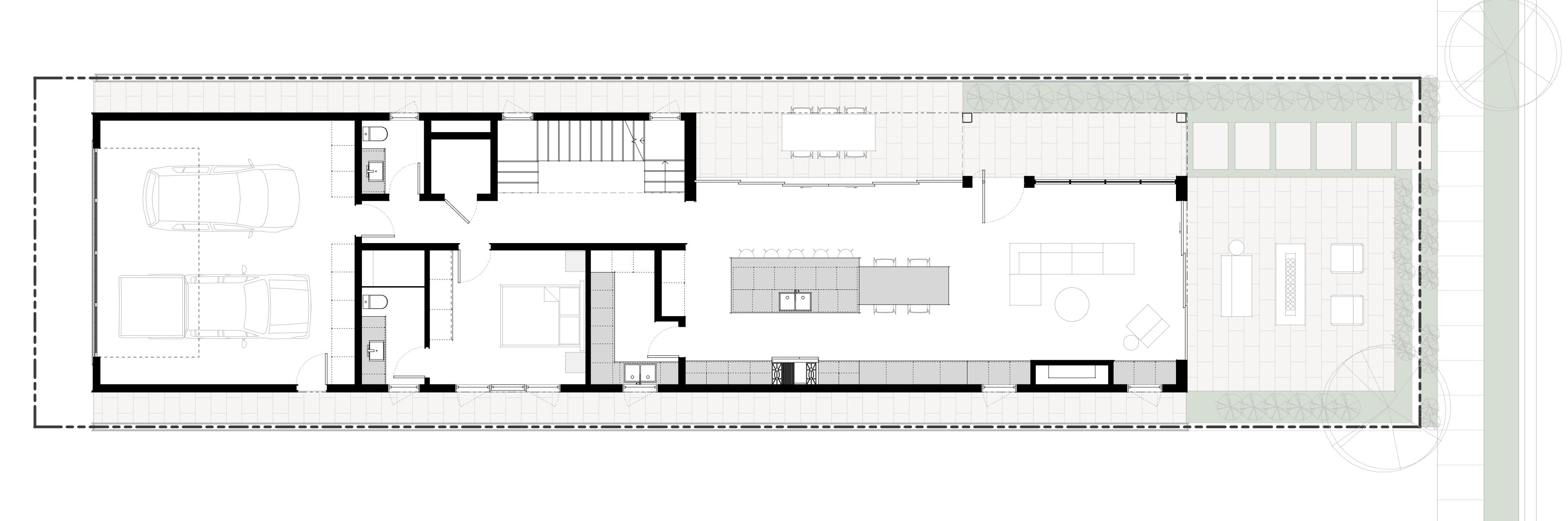
A free, high-level overview of my Schematic Design workflow. I use Revit, my SD Toolkit, and an iPad to be flexible and highly efficient.

From Initial Thoughts

To Presentation Plans

Includes 3 Free Families to download

A base cabinet assembly, door, and window. Try them out in your projects and see if they fit in your workflow.

Your Instructor

Jeff Van Voorhis, AIA

Jeff is a licensed architect practicing in California with over a decade of experience in the industry. His expertise lies in high-end residential design, 3D visualization, and BIM Management. He leverages 3ds Max early in his Schematic Design process to produce near-photorealistic renderings which simultaneously act as both a design tool as well a knock-out deliverable for his clients. His additional experience as an accredited BIM manager for a firm of 20+ people affords him a unique command over Revit.

His focus revolves around optimizing quality and efficiency, helping others develop exceptional deliverables within tight timeframes. 

Contents

Videos

Schematic Design Workflow Overview

Downloads

STKD_SD ToolKit_Freebies.rvt
VVA_SD Toolkit_Manual_2024.pdf

Take a look at my other Resources:

  • $499 or 3 monthly payments of $175

SD Toolkit | The Full Collection

  • Download
  • 69 files

The SD Toolkit is a set of custom Revit families that allow for more efficient and fluid design than the default families. They use "instance" parameters, making it easy to adjust properties like Width and Height without navigating through dialogues. The Toolkit makes Revit feel more like SketchUp while still utilizing all of Revit's BIM capabilities.

  • Waitlist

Revit for Custom Residential

  • Course
  • 49 Lessons

A comprehensive overview of Revit for Architects focusing on Residential Design

You're signing up to receive emails from Van Voorhis Architects.